Architecture Consultant Services in Jaipur
With a detail-focused approach, HiDPL provides architectural consulting that blends creative design with technical precision. As an experienced architecture consultant in Jaipur, we guide your project from the initial site study to refined concept planning, space zoning, and fully detailed working drawings. Our team ensures that every design is structurally practical, visually balanced, and aligned with regulatory standards.
We also support smooth coordination during execution so your project transitions seamlessly from planning to reality. Whether you’re developing a residential home, commercial space, or industrial facility, we create layouts that enhance functionality, comfort, and long-term usability.
Our Architectural Expertise
Residential Architecture
We design homes, villas, and apartments with smart layouts, natural light planning, and comfortable spatial flow for everyday living.
Commercial Architecture
From offices to retail spaces, we plan commercial environments that support productivity, brand identity, and smooth circulation.
Interior Design and Styling
We design stylish, functional interiors with thoughtful layouts, coordinated finishes, and a cohesive look that enhances everyday living.
Industrial Facility Planning
We develop practical layouts for factories, warehouses, and production units with efficient zoning and workflow-focused planning.
Space Optimization & Zoning
Our zoning approach ensures proper circulation, functional segregation, and effective utilization of available space.
Elevation Design
We craft elevations that balance visual appeal with structural practicality, climate sensitivity, and material suitability.
Architectural Drawings We Provide
As a professional architecture consultant, we prepare clear, detailed, and execution-ready drawings that help clients, engineers, and contractors understand the project accurately.

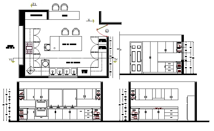
Floor Plans
We create well-organized floor plans that define room sizes, circulation flow, zoning, and functional placement. These layouts ensure your space is easy to navigate and optimized for everyday use.
Elevations & Building Exteriors
Our elevation drawings showcase the visual look of your building, including facade elements, proportions, materials, and design style. They help you understand the exterior appearance before construction begins.


Sections & Detailed Cuts
Section drawings explain height levels, slab positions, staircase details, and structural connections. They give a clear picture of how different floors and spaces relate to each other vertically.
Execution Drawings
These drawings are used directly on site for masonry work, reinforcement placement, flooring, doors, windows, and finishing tasks. They guide contractors with accurate measurements and technical details.


MEP Coordination Plans
Our MEP drawings integrate electrical points, plumbing lines, drainage routes, and HVAC layouts. This ensures all services fit seamlessly within the architectural design without future rework.
Sanction Drawings
Prepared as per Jaipur and local authority guidelines, these drawings include zoning, setbacks, FAR usage, and compliance details required for building permissions.

Our Design Process
Our design process ensures every project moves from concept to final drawings with clarity, accuracy, and smooth coordination. We follow a structured approach that helps clients understand each stage and allows contractors to execute the design without confusion.
1. Requirement Discussion
We begin by understanding your ideas, space needs, lifestyle, and project goals to set a clear design direction.
2. Site Study & Measurements
Our team visits the site to study levels, surroundings, sunlight, wind direction, and dimensions for better planning.
3. Concept Planning
We prepare initial layout options that define room placement, circulation flow, and zoning for functional use.
4. Layout & Space Planning
The selected concept is refined into a detailed floor plan with optimized space utilization and practical movement patterns.
5. Elevations & 3D Views
We craft the exterior design and provide 3D visualizations to help you visualize the overall look and feel of the project
6. Technical & Working Drawings
Detailed drawings for structural alignment, masonry, doors, windows, flooring, and services are prepared for on-site execution.
7. Approvals & Coordination Support
We assist with documentation and coordinated drawings required for local authority approvals and contractor execution.

Why Choose Us as Your Architecture Consultant in Jaipur?
Choosing the right architecture consultant plays a major role in how smoothly your project moves from idea to execution, and at HIDPL, we focus on creating designs that are practical, well-planned, and easy to implement. As an architecture consultant, we combine imaginative design thinking with technical clarity to create spaces that feel comfortable, practical, and built for long-term performance. Our team begins every project by understanding your needs, studying the site, and developing concepts that balance aesthetics with functionality.
Each drawing—whether a floor plan, elevation, section, or working detail—is prepared with accuracy so contractors can execute the design without confusion. We also work closely with your structural engineering consultant to ensure architectural layouts align with load-bearing requirements, safety standards, and overall structural feasibility. With strong knowledge of JDA norms, building guidelines, and IS codes, our designs meet all regulatory expectations and approval needs.
To help clients visualize the complete outcome, we offer 3D views, material guidance, and coordination support during execution. Whether you’re planning a home, office, showroom, or industrial space, HiDPL focuses on smart space utilization, clear communication, and thoughtful design solutions that add comfort, value, and long-term performance.
